1
previous arrow
next arrow
PlayPause
Shadow

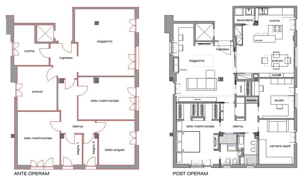
Comfort Zone: Ristrutturazione appartamento piano attico a Porto d'Ascoli


Anno 2013


il progetto: ...un luogo SPECIALE

il mio obiettivo: ..ENTUSIASMO

lavoriamo insieme: Progettiamo insieme un FANTASTICO RISULTATO !!

1
2
3
4
5
6
7
8
9
previous arrow
next arrow
1
previous arrow
next arrow
PlayPause