Anteprima
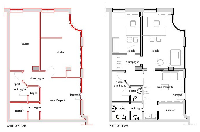
STATO MENTALE: Studio medico professionale Dott.ssa Alice Sanguigni, realizzato nel centro di San Benedetto del Tronto.
Anno 2023

il progetto: ...come un quadro di VAN GOGH
il mio obiettivo: SORPRENDENTE serenità
lavoriamo insieme... sarà EMOZIONE !!!
Galleria fotografica
Prima e Dopo



Ante e Post Operam

























